Omni Housing

415 exclusieve wellness villa

 

Ultiem Wellness-Genot aan de Rand van de Maasduinen: Villa 415 Exclusief

Zoekt u de absolute top in recreatief wonen? Villa 415 Exclusief biedt een ongeëvenaard niveau van luxe, ruimte en rust. Gelegen op een riant perceel van maar liefst 500 m² aan de rand van het park, geniet u hier van een blijvend vrij uitzicht over het uitgestrekte natuurgebied "De Maasduinen".

Met een indrukwekkend woonoppervlak van maar liefst 130 m² zet deze 6-persoons villa een nieuwe standaard. Dit is geen gewone vakantiewoning; dit is een privé-resort op een van de mooiste locaties van het park, waar elke vierkante meter in het teken staat van kwaliteit en ontspanning.

Onder Architectuur Aangelegde Tuin op 500 m²

De buitenruimte is een verlengstuk van de luxe binnen. De woning is gelegen op een royaal perceel van 500 m², waarbij de tuin onder architectuur is aangelegd. Strakke lijnen, hoogwaardige materialen en een doordacht beplantingsplan vloeien naadloos over in het aangrenzende natuurgebied. Hier geniet u van maximale privacy en een serene sfeer die u direct bij aankomst omarmt.

Uw Eigen Private Spa

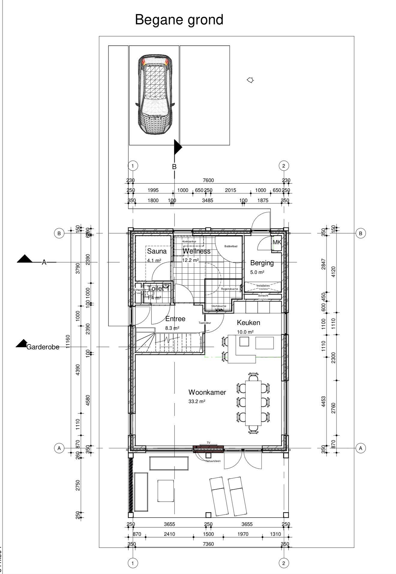
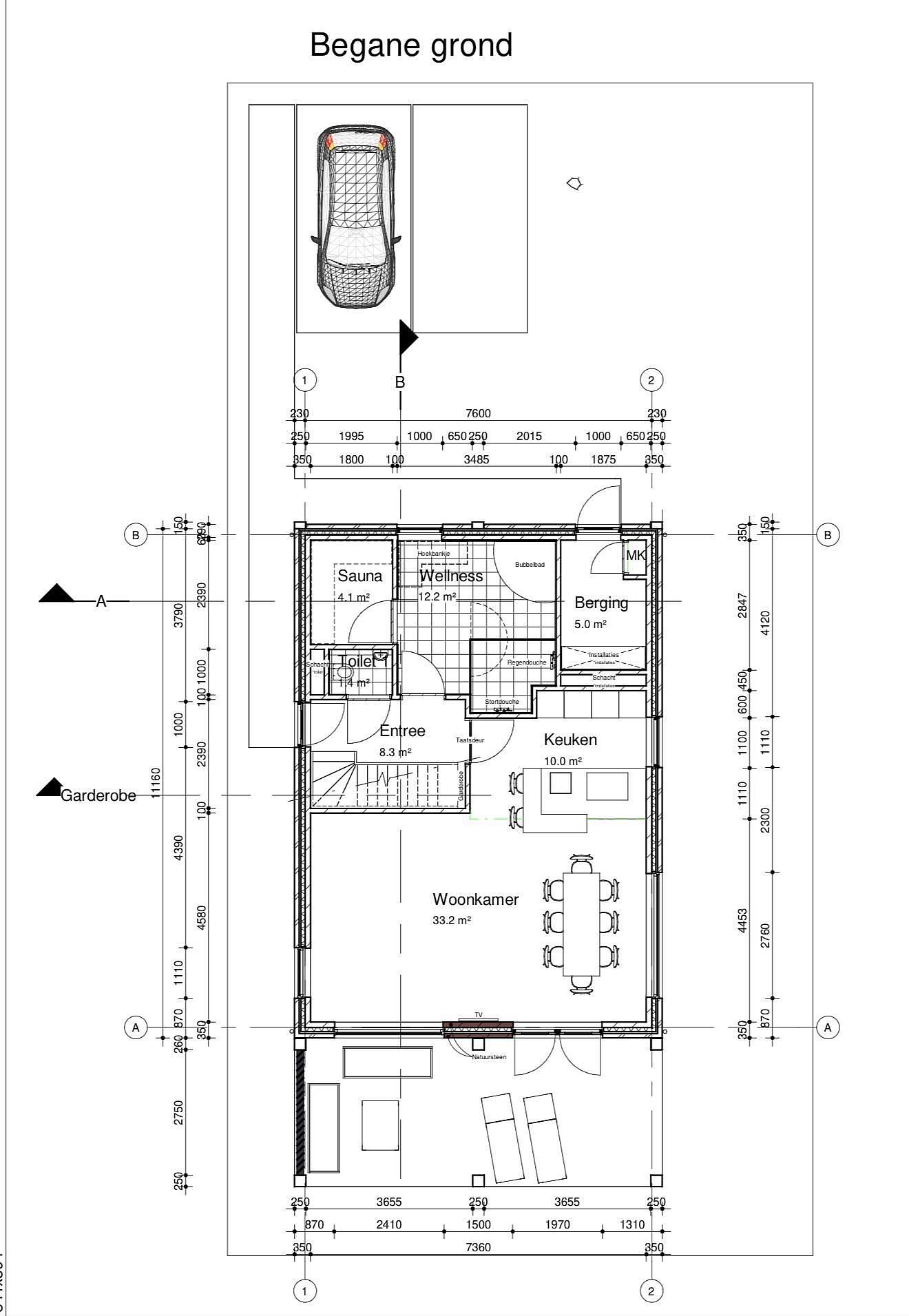
Bij binnenkomst valt direct de ruime en exclusieve indeling op. Via de hal bereikt u het royale wellness-bereik. Vergeet de openbare sauna; hier beschikt u over een complete privé-spa:

  • Een ruime, rustgevende sauna.
  • Een luxe bubbelbad in de hoek voor urenlang ontspannen.
  • Een doucheritueel van topniveau met zowel een stortdouche als een regendouche.
  • Optimale vitamine D-opname terwijl u doucht dankzij de ingebouwde Sunshower.
  • Een comfortabele relaxbank om in alle rust bij te komen.

Culinaire Gezelligheid & Buitenleven

De living is ruimtelijk en licht. De moderne keuken is voorzien van alle denkbare apparatuur (inductie, vaatwasser, combi-oven) en beschikt over een gezellige eetbar. Het is de perfecte plek voor een borrel tijdens het koken, waarna u dineert aan de grote eettafel.

Buiten geniet u het hele jaar door onder de imposante veranda (725 x 300 cm) die over de hele breedte van het huis loopt. Met de aanwezige luxe ligbedden is dit dé plek voor een goed boek met uitzicht op de natuur.

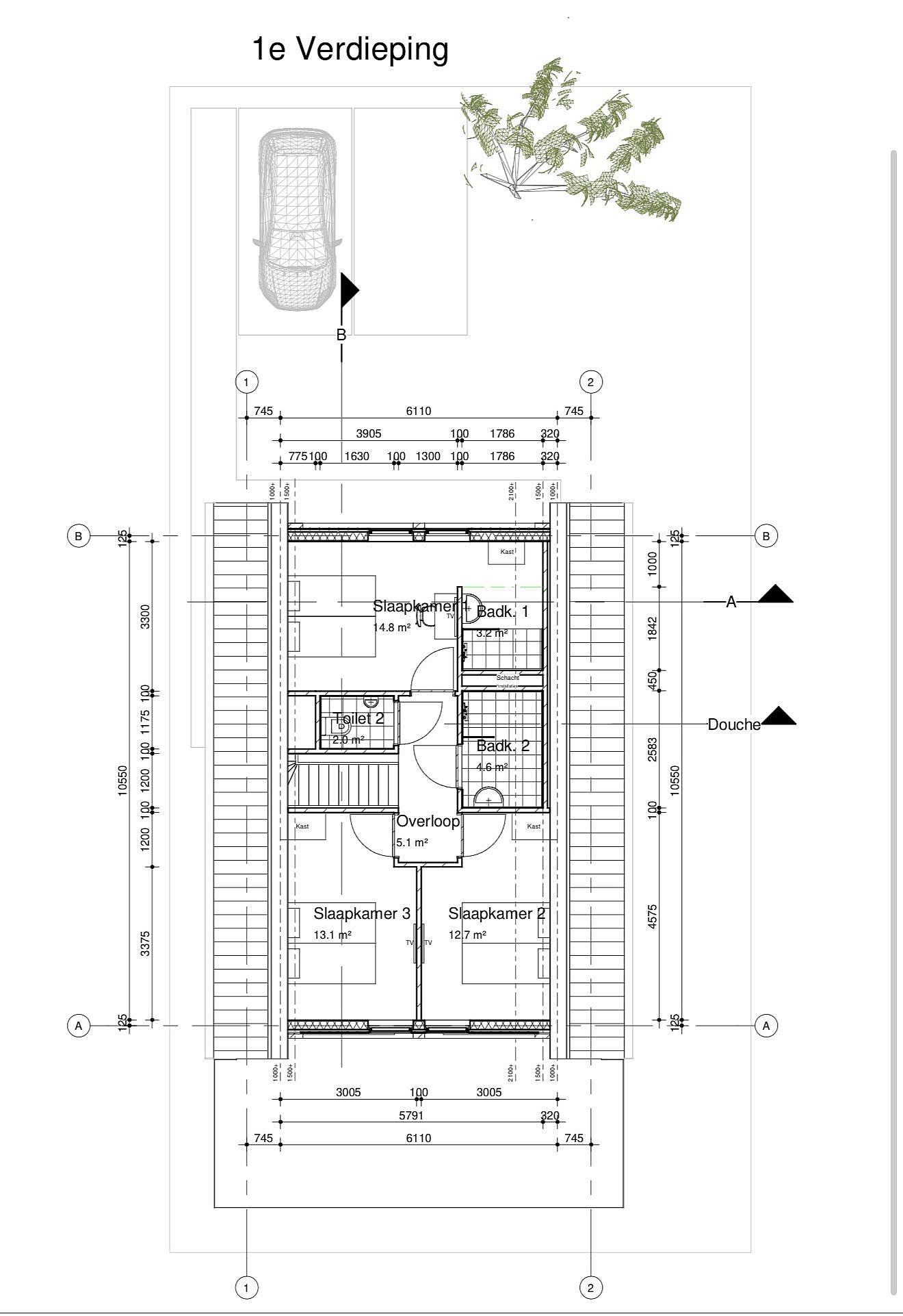
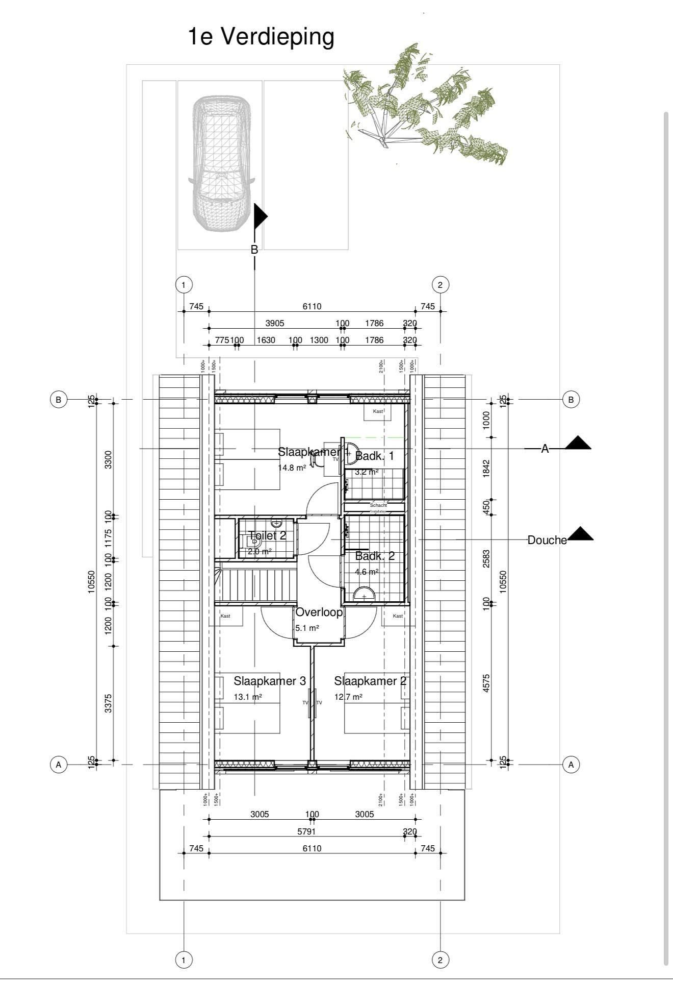
Rust en Ruimte op de Verdieping

De bovenverdieping biedt drie royale slaapkamers en een separaat toilet. De Masterbedroom is met 18 m² zeer riant en beschikt over een eigen badkamer. De overige twee kamers delen een tweede stijlvolle badkamer. Alle ramen op de verdieping zijn voorzien van horren voor optimaal comfort.

Waarom Villa 415 Exclusief uw droomwoning is:

  • Riant Perceel: Maar liefst 500 m² eigen grond met een onder architectuur aangelegde tuin.
  • Locatie: Rustige ligging aan de rand van het park met direct vrij uitzicht op de Maasduinen.
  • Wellness: Een compleet ingerichte privé-spa met sauna, bubbelbad en Sunshower.
  • Hoogwaardige Techniek: Technische ruimte met Miele was-/droogcombinatie en eigen laadpaal bij de twee parkeerplaatsen.
  • 365 Dagen Recreëren: Een unieke buitenkans voor liefhebbers van luxe, comfort en kwaliteit.

Kenmerken op een rij:

  • Vrijstaande Wellness-Villa (130 m²) op 500 m² kavel
  • Blijvend vrij uitzicht op natuurgebied De Maasduinen
  • Luxe Spa met sauna, bubbelbad en Sunshower
  • 3 Slaapkamers & 2 Badkamers (Masterbedroom 18 m²)
  • Grote veranda over de volledige breedte
  • 2 Parkeerplaatsen inclusief eigen laadpaal
  • complete inventaris van €25000 is inclusief.

Bent u klaar voor de ultieme vakantie-ervaring in eigen land? Villa 415 Exclusief is een zeldzame buitenkans. Neem vandaag nog contact met ons op voor een exclusieve bezichtiging!


 
StatusTe koop
Investeringsrendement labelluxe, ruimte en rust!
ParkMarina Resort Leukermeer
Aantal slaapkamers
3 slaapkamers
Aantal badkamers
3 badkamers
Voor aantal personen
6 personen
Bouwjaar2023
Woonoppervlakte130 m2
Type perceelonder architectuur aangelegd
Oppervlakte perceel499 m2
Huisnummer op park415
Energielabel
A+++
 
€ 660.000,-K.K.
 

Plattegrond

 

Geïnteresseerd in deze woning?

Plan een bezichtiging of neem vrijblijvend contact met Olav op!